Une recyclerie c’est une déchetterie + un bâtiment dédié au réemploi. L’idée étant de favoriser au maximum la réutilisation et la réduction des déchets.
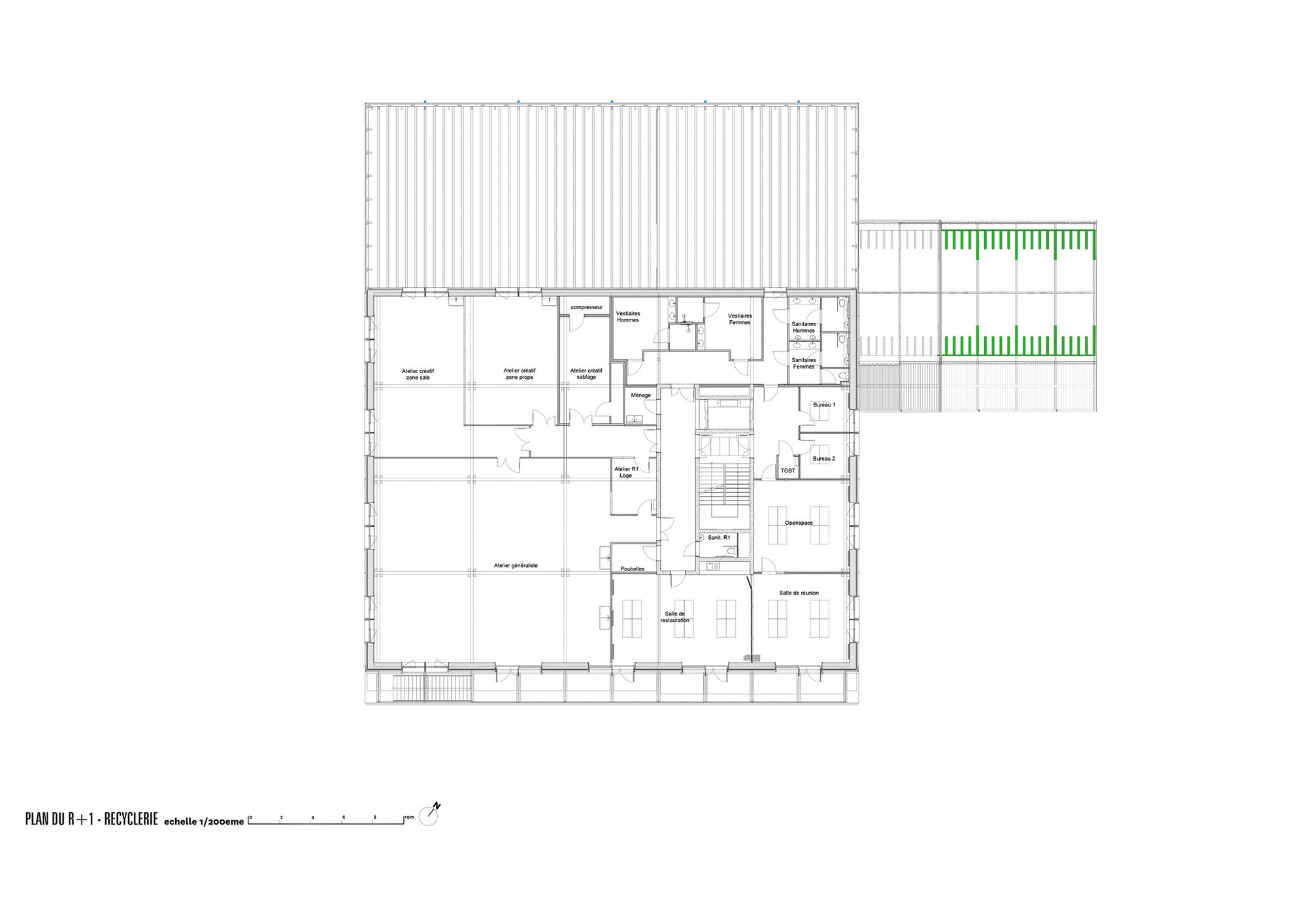
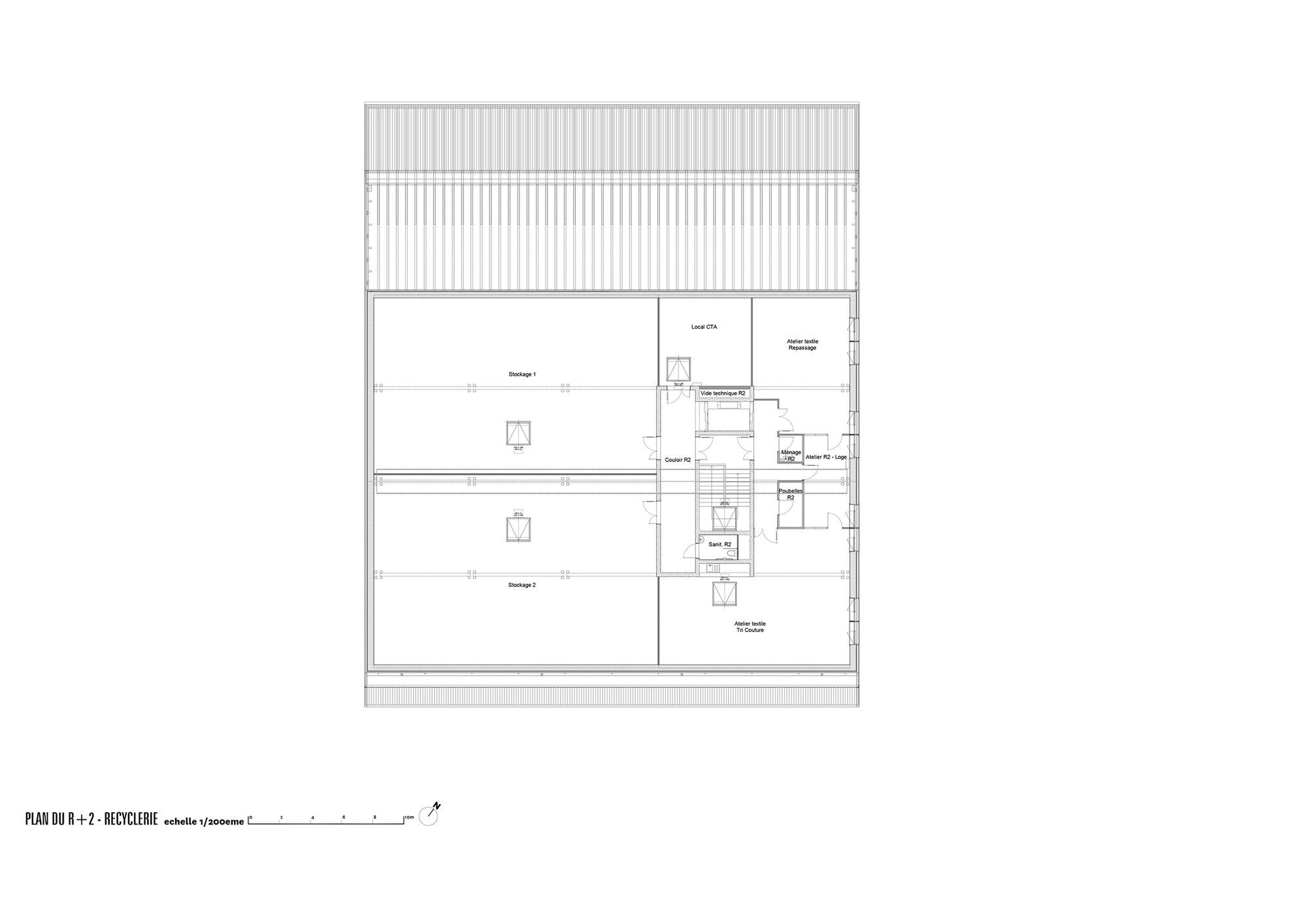
Deux filières dans le bâtiment : les objets et les matériaux.
- Les objets sont pesés, puis stockés, puis transportés dans différents ateliers de réparation/transformation, puis disposés dans un grand magasin de vente (un peu comme nos amis d’Emmaüs)
- Les matériaux sont pesés, puis stockés, puis triés, reconditionnés puis disposés dans un magasin intérieur ou une cour des matériaux (un peu comme chez Leroy Merlin mais en moins cher et en beaucoup mieux)
Autour de ça : des bureaux, des espaces pédagogiques, des salles de réunions, une salle d’expo, un repair-café, un jardin pédagogique.
Une cinquantaine d’emplois à la clé. De nombreuses associations partenaires.
Notre bâtiment veut montrer l’exemple : une grande grille en structure bois, en épicéa scolyté (car ce n’est pas un déchet).
Les façades sont constituées de matériaux de réemploi : en bas le minéral, au milieu le bois, en haut la terre cuite.
A l’intérieur le second œuvre sera lui aussi réalisé en matériaux de réemploi : cloisons, sols, plafonds, menuiseries.
Et une première collaboration prometteuse avec RE-nouveau le BE reemploi associé à RE-mise. Ils nous conseillent sur le process de fonctionnement et sur l’intégration des matériaux de réemploi dans la construction.
Perspectives : Xavier Leclerre



































