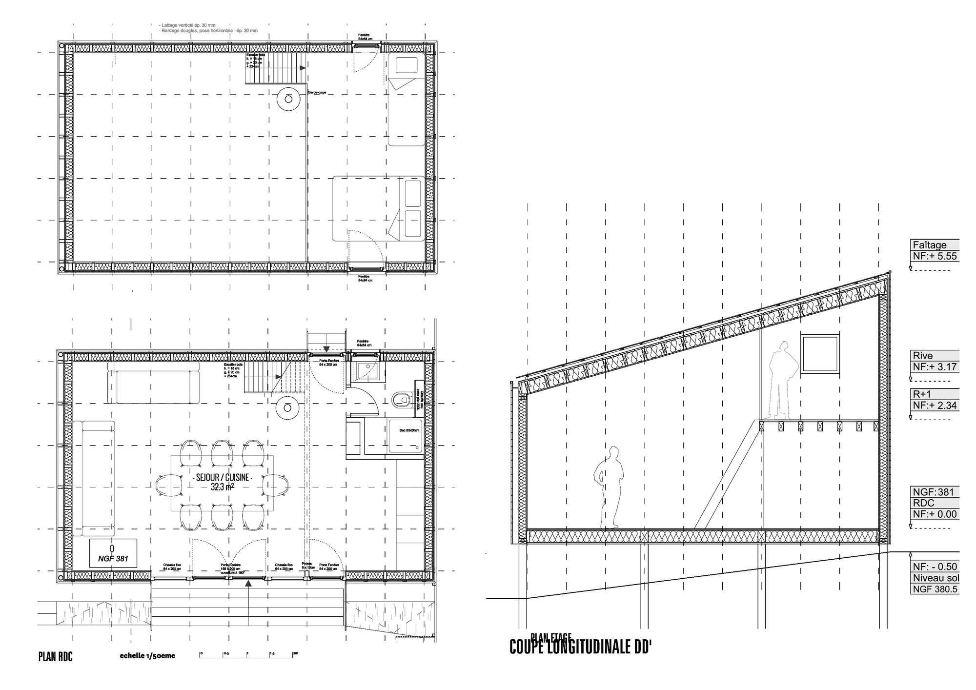
Construction d’une maisonnette/chalet/cabane de 35m2 au sol dans les Vosges.
Non loin d’un petit lac sympathique
Espaces minimums pour déconnecter le week-end
Expérience zéro béton.
Tout est en bois d'arbre non transformé (des planches et quelques poutres) construit par les charpentiers/menuisiers de "Il était un arbre".
La maison repose sur 8 pieux métalliques vissés dans le sol.
Si un jour il faut partie, on démonte tout, on dévisse les pieux et le terrain redevient sauvage.
Auto construction pour le parquet, la cuisine, les meubles, le bardage du bas, la clôture, le jardin...
Épicéa, acacia, mélèze, chêne, frêne, hêtre, aulne..
Granit rose de Senones pour la cuisine et les pierres du poêle.
Pierre de Bourgogne pour la salle de bain.
Bravo aux entreprises:
Technopieux
Il était un arbre
Menuiserie Lecomte (fenêtres bois)
Ece electricité
DG maintenance pour la plomberie
Pierre décor pour le poêle





























































