« Recyclage » du bâti existant
Construit en 1852, le manège de l’Orangerie répertorié à l’inventaire des Monuments Historiques a déjà vécu plusieurs reconversions au fil des siècles. Tout d’abord manège à chevaux pour le régiment de cavalerie de Lunéville à sa construction, il est adapté en hangars pour chars d’assaut au milieu du 20ème siècle. En 1993, il est investi par la médiathèque. Le projet de restructuration, livré en 2018, offre une grande flexibilité des espaces permettant non seulement de multiplier les usages aujourd’hui, mais également de permettre une évolution dans le temps.
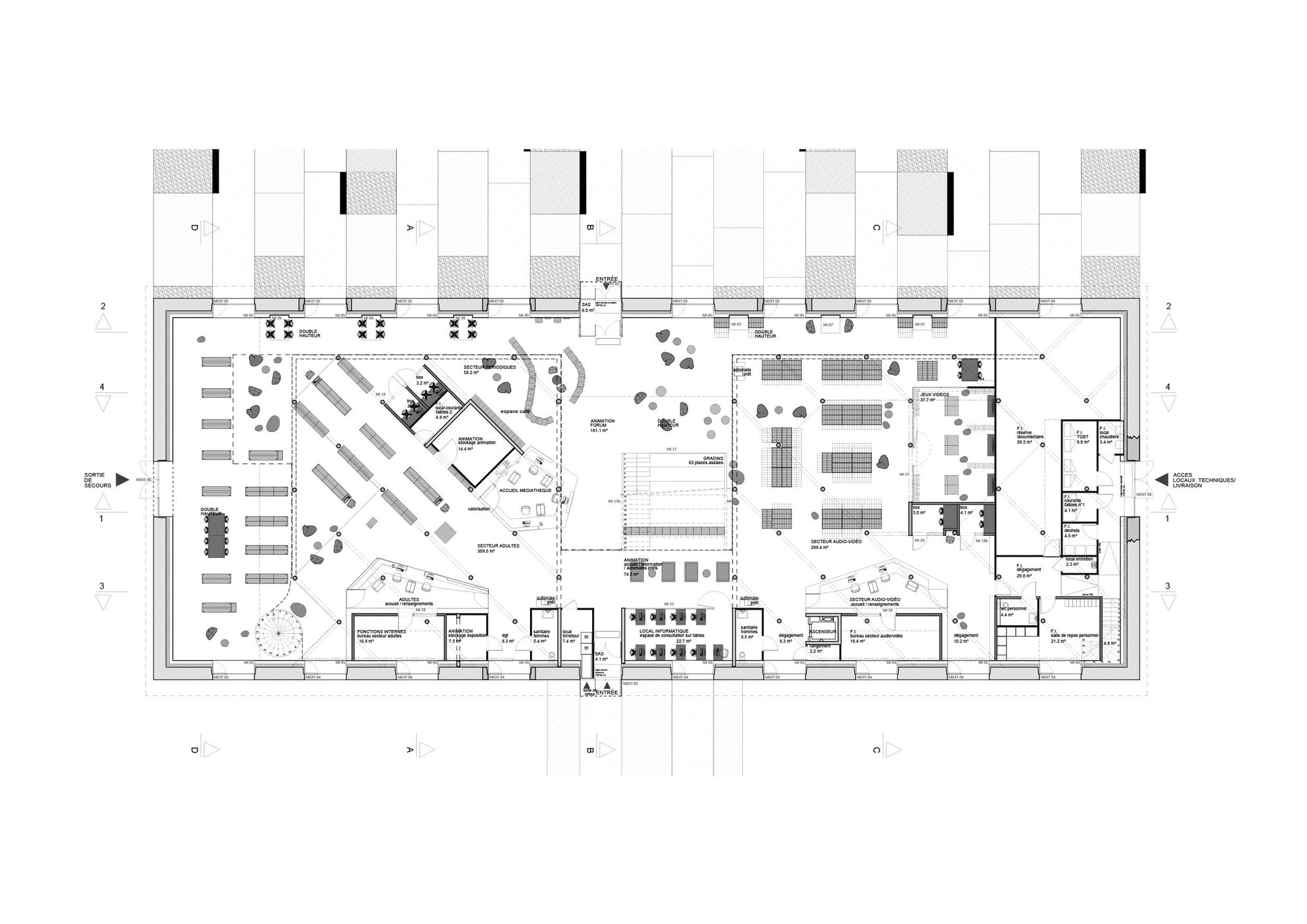
Ainsi les différents secteurs, largement ouverts, s’interpénètrent et permettent au visiteur une grande liberté de déplacements et de consultation. Le projet tire parti du grand volume originel du bâtiment et s’ouvre vers la ville jusqu’alors délaissée.
Approche environnementale
Le projet permet d'atteindre un niveau de performance passif, de par sa compacité et sa conception. Plantation d'arbres en façade sud pour limiter l'échauffement. La biodiversité du parc, au nord,est préservée, voire améliorée par la création d'un parvis paysager et planté. Bâtiment rénové Enerphit (rénovation passif) avec U moyen <0.20W/(m².K) pour limiter les parois froides.
Les éléments bois mis en œuvre dans le projet sont en hêtre pour les portes et marches du gradin, en peuplier pour les habillages des murs à ossature bois etgarde-corps, en sapin pour les châssis extérieurs.
Le projet intègre une sensibilisation des occupants et maitre d'ouvrage et un accompagnement la première année de mise en service.
Chantier labellisé chantier vert. Chaque entreprise a intégré, dans son équipe, des personnels en insertion, suivant les prérogatives des pièces administratives mises en place par le maitre d'ouvrage.
L'économie frugale
Le ratio au m² très faible du bâtiment met en évidence qu’il est possible de réaliser des espaces qualitatifs à moindre cout grâce à une conception éclairée.
La structure existante est conservée et les volumes créés au cœur du bâtiment - auditorium, heure du conte et
atelier -sont réalisés en ossature bois résineux des forêts Vosgiennes. Le plafond de l'étage est percé de 16 larges puits de lumière apportant une lumière constante du nord et filtrée du sud
Création d’un forum central, véritable articulation de la médiathèque, permettant de faire la jonction entre façade Nord et façade Sud, tout en distribuant l’ensemble des différents secteurs. Ce vide, créé au cœur de la médiathèque est pensé comme un lieu d’échange et de convivialité, dans lequel pourront se dérouler des concerts, des expositions ou encore des représentations théâtrales. Le gradin, situé dans le forum, est un des éléments majeurs de cet aménagement.
Plus qu’une médiathèque, le projet de restructuration a été pensé comme un tiers lieu ; un lieu de rencontre, d’échange, de réunion et de découvertes. Nous avons organisé son programme suivant trois axes majeurs :
-Ouverture de la médiathèque sur l’extérieur, l’espace Clarenthal, la ville. Cela se traduit par l’agrandissement (ainsi que la réouverture pour certaines) des baies préexistantes, ménageant ainsi de larges vues sur l’espace Clarenthal et apportant également une précieuse lumière naturelle. Cet éclairage naturel sera complété, au 1er étage, par la création de pyramides de lumière, en toiture.
-Création d’un forum central, véritable articulation de la médiathèque, permettant de faire la jonction entre façade Nord et façade Sud, tout en distribuant l’ensemble des différents secteurs. Ce vide, créé au cœur de la médiathèque est pensé comme un lieu d’échange et de convivialité, dans lequel pourront se dérouler des concerts, des expositions ou encore des représentations théâtrales. Le gradin, situé dans le forum, est un des éléments majeurs de cet aménagement.
Si ce projet est résolument tourné vers le futur, chaque élément mis en œuvre est pensé en fonction des utilisateurs, habitués (futurs habitués) ou de passage. Aussi une attention toute particulière a été portée sur les différentes manières de lire / écouter / regarder / jouer / apprendre ; isolé ou en famille, sur une chaise, un fauteuil ou le gradin. Le projet consiste en la restructuration complète des deux niveaux existants de la médiathèque de l’Orangerie. L’objectif était de modifier complètement l’agencement de la médiathèque de Lunéville pour la tourner vers le futur et rendre possible de nombreux échanges et pratiques transversales entre tous les protagonistes. L’enjeu se trouvait également dans le fait de redonner la médiathèque au quartier, à la rue, de l’ouvrir sur l’extérieur ; une médiathèque étant une fenêtre sur le monde extérieur.
Le projet tire parti du grand volume originel du bâtiment et s’ouvre vers la ville jusqu’alors délaissée. La médiathèque s'ouvre largement sur l'extérieur,et offre aux utilisateurs de profondes perspectives sur les différents espaces.Véritable troisième lieu, le projet d’aménagement s’articule autour de lieux d’exposition, de représentation et de concerts. Un forum central, équipé d'un gradin structure et distribue l'ensemble du bâtiment. Il est un lieu vivant d'échange et de convivialité.
Des volumes bois intérieurs participent à la fluidité des espaces, liés par les garde-corps, le gradin et l'escalier en colimaçon. Ces éléments confèrent au bâtiment une dimension apaisante.
Un parvis est aménagé, au nord de la parcelle, s’ouvrant sur l’espace Clarenthal, il constitue une transition entre la médiathèque et la ville, dans la continuité des façades modifiées.
Après avoir supprimé l’extension formant sas d’entrée qui dénaturait complètement la volumétrie primaire du bâtiment, nous avons ouvert les façades, au droit de toutes les demi-lunes existantes. Ces ouvertures s’appuient sur les pierres de sous-bassement et permettent au personnel et visiteurs de la médiathèque d’avoir une vue sur l’extérieur. Cette vue est privilégiée, façade Nord, sur l’espace Clarenthal (véritable parc urbain), espace voué à être totalement réaménagé. Ces ouvertures en rez-de-chaussée pourront être obstruées par un store extérieur; nous retrouverons alors l’aspect originel au bâtiment.
Le projet tente de répondre aux différentes problématiques soulevées par le programme de la médiathèque de Lunéville, tout en apportant des solutions à l’accessibilité des personnes à mobilité réduite et en respectant l’identité du bâtiment construit en 1854.
Les murs de façade, en pierres de taille et moellons sont isolés par l'intérieur, après avoir supprimé tous les ponts thermiques liés à la dalle haute du rdc.
Une étanchéité à l'air complète est assurée, pour un résultat mesuré à 1.02 vol/h sous N50. La chaudière gaz est d'une puissance de 65kW, pour une surface utile de plancher d'environ 2200m².
Les châssis extérieurs de très grandes dimensions sont en alu/bois + triple vitrage. Ces châssis ont fait l'objet d'une validation suite à des essais spécifiques AEV.
Les isolants, sont en laine de roche d'une densité de 70kg/m3.







































































