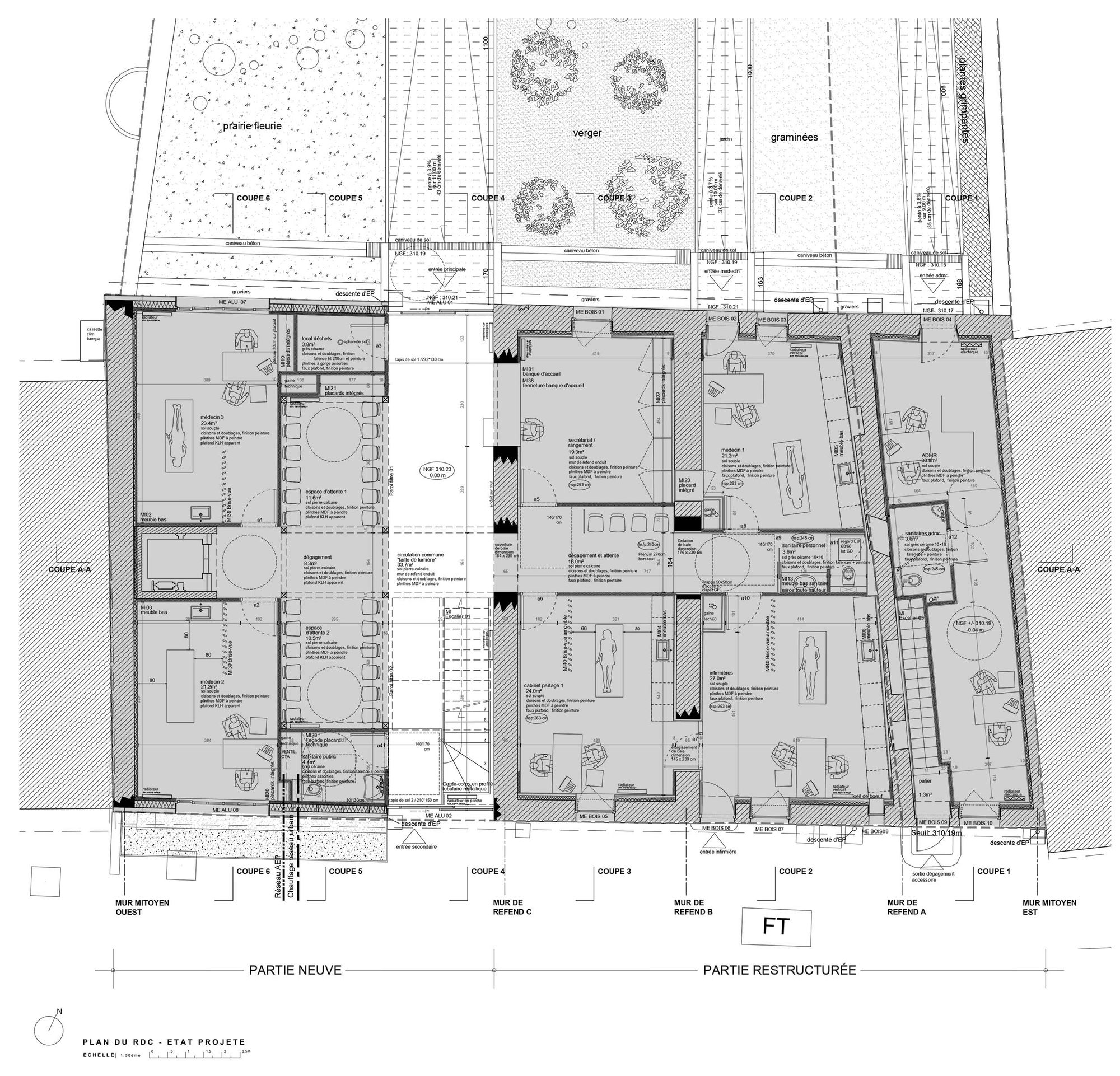
Restructuration d’un ancien corps de ferme en cœur de bourg pour abriter une maison de santé et les bureaux de l’ADMR. La partie authentique a été conservée, la partie dénaturée (ancienne caserne des sapeurs-pompiers) a été démolie pour accueillir la partie neuve.
Le projet se décompose en 3 tranches :
- une faille transparente au milieu qui traverse le bâtiment et relie la place d’Armes à la rue principale, en face du magnifique Hôtel de Ville.
- le corps de ferme ancien rénové fidèlement à l’existant
- le corps neuf en structure bois habillé de Zinc
Côté place d’Armes le bâtiment se prolonge par un jardin composé en lanières évoquant les anciennes parcelles mitoyennes puis une petite halle en bois fait le lien avec la place.
Cet abri accueille les étals du marché le jeudi matin et des stationnements ou des promeneurs le reste du temps. La charpente de cette halle est en bois massif de douglas vosgien
Tout le monde connait le « siège de Liffol »
150 années d’un artisanat d’excellence autour de la menuiserie en siège (savoir faire, artisanat, fabrication locale) reconnu par Indication Géographique (IG) en 2015.
L’architecture de la nouvelle maison de santé de Liffol- le-Grand s’attache à cette culture particulière :
- La charpente de la partie neuve est une grille poteau poutre en bois de feuillus, en chêne local
- De grands claustras bois, séparant les salles d’attente du hall, sont constitués de lattes d’épicéa assemblées suivant le motif précis du « cannage » traditionnel.
L’ensemble du mobilier (chaises et tables) provient des manufactures et des Ecoles Professionnelles situées sur le territoire.
Delphine Menou et Made In Grand-Est ont orchestré ce travail collectif pour définir les besoins et assurer la diversité et la qualité des meubles fournis.
La maison de santé devient une vitrine publique qui présente différents échantillons de siège liffolois : menuiserie, tapisserie, cannages, etc…
Ont participé : AFPIA- Ecole de l’ameublement, Jean-Pierre Besse, Pierre Counot Blandin, Henryot &Cie 1867, Laval, Na Souchet, Atelier Clubspirit, Neo Sièges France, Stylirex, Cannage Ameublement, Meuble Dupont-Collin, Meubles & Arts Liffolois.



















































































