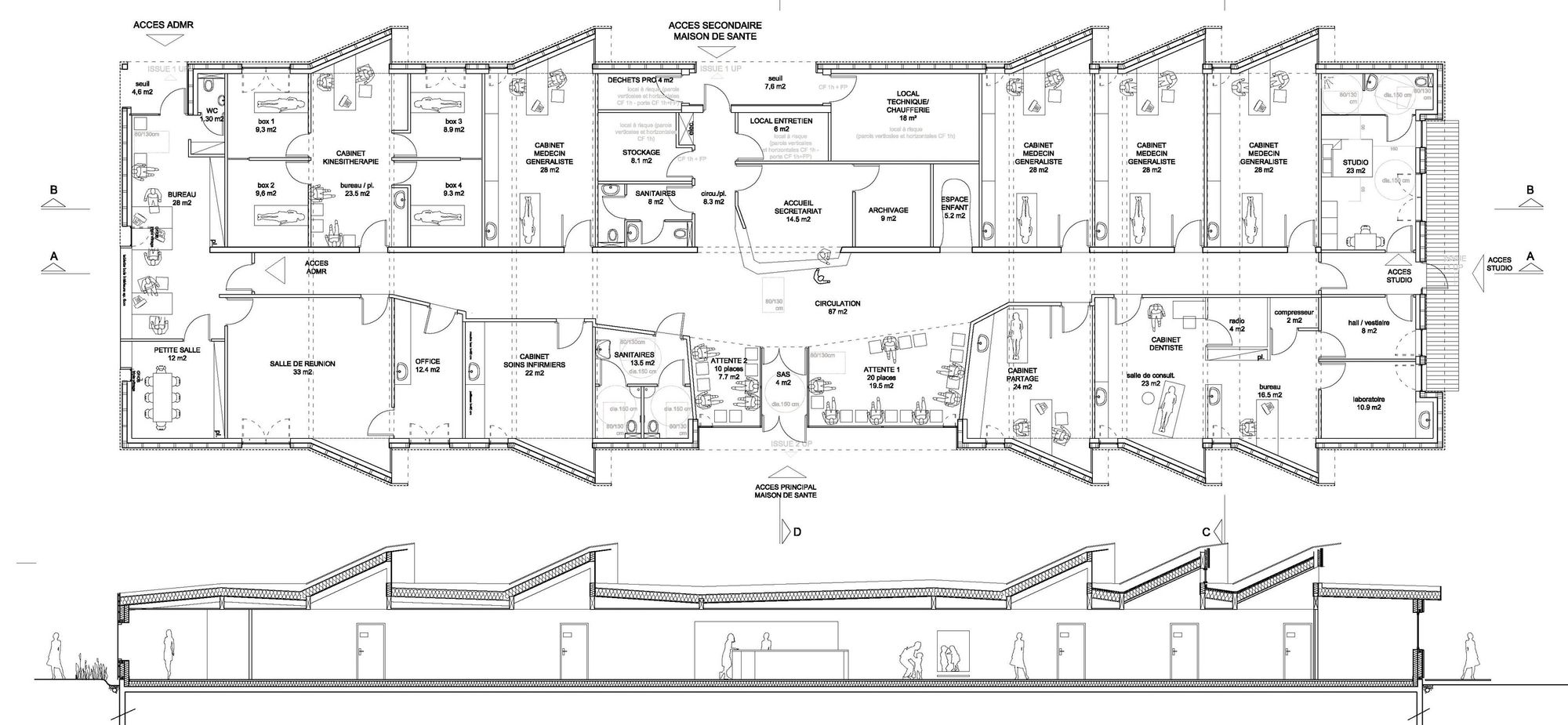
Le projet prend place dans un environnement diffus, entre le gymnase, le magasin GITEM et une zone pavillonnaire des années 80. Le parti architectural propose un bâtiment horizontal qui dialogue avec l’aspect « prairie » de la parcelle.
Deux critères sont à l’origine de la forme du bâtiment :
1 - s’ouvrir largement du côté sud afin de profiter au maximum des apports solaires naturels et se protéger des nuisances de la N4 au Nord
2 - offrir un maximum d’intimité au locaux médicaux en préférant des vues biaises et protégées par des claustras bois plutôt que des ouvertures frontales donnant directement sur les circulations piétonnes extérieures.
Les matériaux naturels sont mis en scène : le bardage bois habille entièrement l’enveloppe extérieure (façade et plans inclinés des sheds) alors que la pierre offre aux espaces intérieurs une sérénité rassurante au vu de la fonction de l’édifice.
Le projet met en œuvre une structure mixte : l’enveloppe est réalisée en ossature bois, fortement isolée alors que le mur de refend intérieur est en pierre calcaire locale (pierre savonnières). Les poutres primaires en lamellé collé portent sur trois appuis : les deux murs longitudinaux en bois et le mur central en pierre. Le bardage est un tressage en 3 couches: deux épaisseurs de lames de mélèze verticales de 6cm disposée en quinconce et écartées par une lame d’acier galvanisé horizontale. Ce système procure de l’épaisseur au dispositif de bardage sans risquer de trop exposer le pare pluie. Les jeux d’ombres et de lumière animent cette façade et les ponctuations brillantes des lames métalliques contrastent l’aspect mat des lames de bois qui griseront au fil des années.





























































