Lieu de vie pour 12 enfants de 3 à 18 ans, extraits de leurs familles, pour leur bien, par protection.
Des coléreux, des introvertis, des doux, des clowns, des durs, des hyper-actifs, des timides…
L’idée d’une grande famille, d’une grande maison (plus qu’un foyer) orchestrée par des éducateurs passionnés.
Dans tous les cas un besoin d’apaisement, de douceur, de réconfort, de dignité, de clarté.
Un sujet d’architecture passionnant et très sérieux : ce cadre de vie doit (plus qu’ailleurs) procurer du bien-être, réinventer l’espace domestique d’une petite collectivité d’individus fragiles.
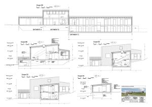
Deux types d’espaces :
- ceux pour être ensemble (au cœur), ouverts, généreux, liés avec la terrasse, le jardin pour jouer, rire, manger, étudier en groupe
- ceux pour être seuls (dans les ailes latérales), des chambres intimes, mesurées pour se reposer, rêver, se concentrer
Le bâtiment s’adapte à la pente, soutient la terre et offre des accès aux jardins hauts et bas.
Le paysage a tout orienté.
Le bâtiment s’étire le long du talus pour offrir le « tableau » à chacune des pièces. Une façade ouest totalement vitrée et tramée par de grandes épines bois formant brise soleil du sud et limitant les vues vers les intérieurs.
Le matériau bois (en charpente, isolation, menuiseries, mobilier) apporte ce dont nous avions besoin en termes de douceur, de domesticité.
Le dessin des meubles nous a permis d’aboutir la cohérence des espaces. Lits, bureaux, tables de nuits, commodes, tables basses sont conçus à partir de planches d’épicéas de 25x195mm. La recherche d’une « élégante rusticité », sans colle, simplement en bois des Vosges.
Une contrainte économique permanente et nécessaire. 1600 € HT/m2 pour le bâtiment parce que les projets sociaux sont multiples et parce que l’association se lançait avec précautions dans ce premier projet de MECS neuve.





















































