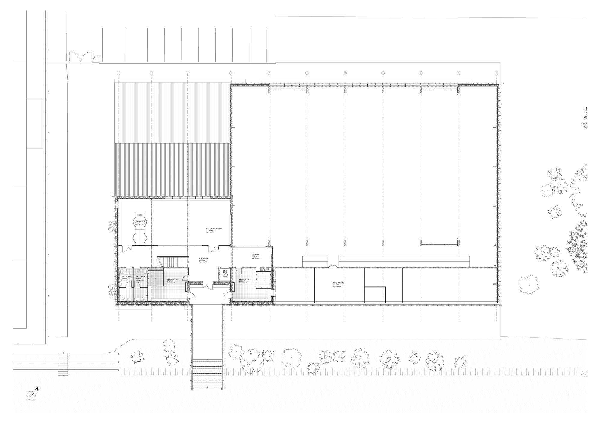
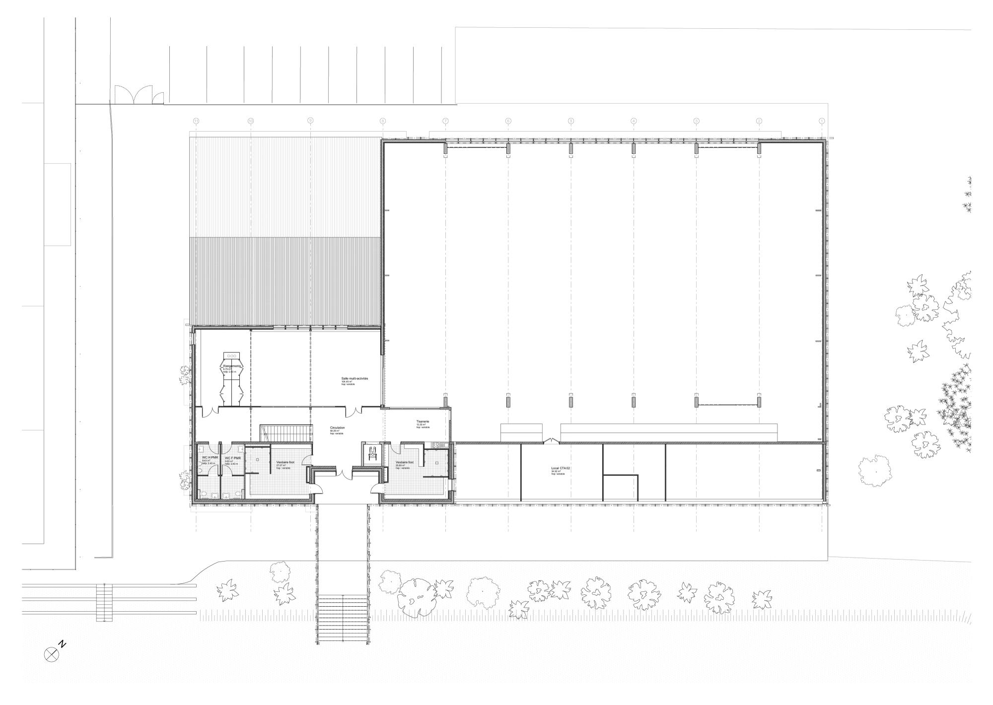
Situé au nord d'Amanvillers, le complexe sportif marque la transition entre le village et le grand paysage. L'extension s’insère de manière rationnelle à la jonction du dojo et du gymnase existants, créant une nouvelle identité visuelle qui fait office de signal depuis le lointain. Le projet s'articule autour d'une gestion fluide des accès : une entrée motorisée par la Rue des Renards au nord et un cheminement piéton depuis le centre-bourg au sud. Ce point de rencontre des flux valorise une ancienne façade secondaire en lien direct avec le parking et les terrains. En s'inscrivant dans une démarche de « juste démolition », le projet privilégie la restructuration à la construction neuve, limitant ainsi son impact environnemental. Les volumes sont recomposés autour d'une colonne vertébrale longitudinale Est-Ouest, instaurant une continuité spatiale totale entre l'extension et la halle sportive.
L'organisation intérieure a été pensée pour la mixité des usages. En basculant l’entrée principale sur la façade sud-ouest, le complexe se dote d’un parvis d’accueil vivant, agrémenté de gradins paysagers propices à la rencontre. Au rez-de-chaussée, le pôle périscolaire profite d’une position stratégique en angle et d’une double exposition lumineuse, tandis que la gestion rigoureuse des flux « pieds-propres / pieds-sales » dessert efficacement le dojo et le gymnase. À l’étage, la salle multi-activités bénéficie d’une lumière constante au nord et d’un lien visuel direct avec la halle. Ce niveau accueille également les vestiaires de football, dont l’accès extérieur protégé intègre une zone de nettoyage des crampons. Enfin, l’élargissement des circulations dans la halle sportive permet l’intégration de gradins et de services (bureau des associations, sanitaires), offrant une unité de lieu où toutes les pratiques se croisent harmonieusement.
Cette fluidité programmatique est portée par une matérialité responsable, privilégiant les circuits courts et la lisibilité constructive. En harmonisant le bois massif des forêts vosgiennes, la brique et le métal, l'édifice se veut transparent : poteaux et assemblages restent apparents pour témoigner du savoir-faire local. Cette volonté d'ancrage est renforcée par une stratégie de réemploi vertueuse, où la tôle ondulée de l'ancien complexe est réintégrée pour préserver la mémoire du site. Le traitement des espaces extérieurs accompagne cette démarche écologique : le reprofilage des talus entre les stades et l’installation de noues plantées assurent une gestion naturelle des eaux pluviales. Complété par une cuve de récupération des eaux de pluie et une enveloppe thermique performante visant les standards passifs, le projet fait acte de pédagogie, démontrant qu'une architecture de qualité peut répondre aux enjeux contemporains par la valorisation de l'existant.





















