Architecte
Benoît Sindt (architecte mandataire)
Collaboratrice
Cécile Demilly
Équipe
Barthes BE Bois
Fluid’Concept
Ludmilla Cerveny (photographe)
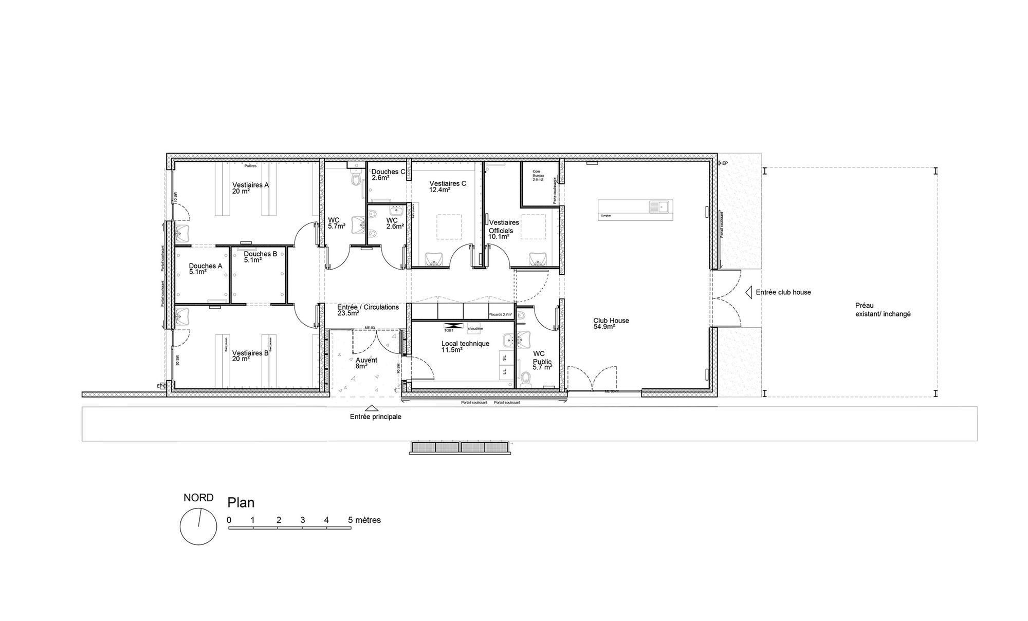
Programme
Vestiaires de football et club house
Mission
Base + OPC
Maitre d'ouvrage
Public - Mairie de Mars-la-Tour
Montant des travaux
298 000 € HT
Surface
194 m²
Rôle
Architecte mandataire
Statut
Livré





















































