Innover
Choisir d’implanter au cœur d’un village à caractère patrimonial un centre d’innovation et de vitalisation dans un bâtiment existant témoigne d’une démarche innovante et d’un engagement pour une transition vers un territoire rural de demain. C’est à travers ces initiatives que la ruralité se redessine pour accompagner l’évolution de la société actuelle.
L’attractivité de la ruralité est un sujet transversal au sein duquel la création architecturale occupe une place stratégique. Le programme offre l’ambition d’une attractivité d’un équipement qui rayonne sur le territoire de la Région Grand Est mais également à l’échelle nationale. L’identité architecturale du projet transmet une image forte et communicante.
Innover aujourd’hui dans ce contexte consiste pour nous à s’inscrire, dans une continuité patrimoniale, en renouant avec des fondements de l’architecture pour une innovation transversale partagée et pérenne :
- réinterpréter le paysage rural, par une implantation en cohérence avec le village rue, et l’architecture traditionnelle à travers le dessin des gabarits
- favoriser la résilience du patrimoine bâti par la mise en valeur de ses potentiels
- construire avec des ressources locales
- employer des techniques et des savoir-faire constructifs locaux
- fédérer autour de chantiers démonstrateurs architecturaux
- édifier avec un objectif de pérennité
Nous sommes convaincus que le patrimoine est un levier de développement culturel, économique et touristique.
Patrimoine rural
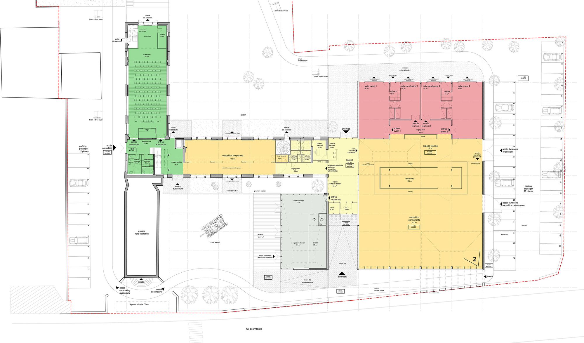
Implanter un bâtiment de 2600 m2 au cœur d’un village rue nécessite une réflexion concernant son intégration dans cette composition primitive. Le bâtiment neuf s’implante en front de rue en cohérence avec les masses bâties présentes dans le contexte environnant.
L’implantation forme un bâtiment signal et les larges ouvertures créent une véritable vitrine sur l’espace public. A contrario, une intervention en fond de parcelle ou enterrée aurait été synonyme de discrétion subie, desservant les enjeux du projet.
La mise en scène paysagère du site est particulièrement remarquable. Le projet tire profit de cette qualité pour proposer des espaces extérieurs accessibles à différents usages :
- le circuit serpente à travers le site et assure un bouclage sur le terrain de projet. Il met en mouvement le site, véritable reflet du dynamisme local du circuit de Chenevière et de Passeport Prevention. Plus largement il relie le site au chemin d’accès le long de la voie ferrée qui pourra être relié dans le futur au circuit de Chenevière, et également l’accès carrossable des zones de stationnement côté rue. Il propose également une galerie d’exposition extérieure.
- la cour avant, prolongement du bistro-restaurant comme un patio protégé (préservé des flux) sera utilisée pour des évènements ponctuels en lien avec la galerie d’expo temporaire et le restaurant.
- le jardin, côté parc, dédié aux événements des salles Event en lien avec l’amphithéâtre et la galerie d’expo temporaire
- le parc, accueille une partie importante du circuit, zone de test de certaines pièces de la collection et galerie d’exposition extérieure agrémentée d’œuvres exposées à l’extérieur
- le théâtre de verdure, en miroir des gradins de l’amphithéâtre dispose d’une scène commune intérieur / extérieur pour des événements « hors-normes ». Cet aménagement permet de proposer des projections extérieures type Drive In où les voitures pourrons stationner dans le parc.
- les zones de stationnement paysagers de part et d’autre du bâtiment.
- un niveau rez-de-chaussée pour l’ensemble du site dans le prolongement du niveau du terrain naturel. La dalle du rez-de-chaussée du bâtiment existant est donc surbaissée pour plus de fluidité entre les espaces intérieurs et extérieurs.
Chaque entité bénéficie d’un accès autonome et contrôlé.















