Architectes
Benoît Sindt (architecte mandataire)
Atelier PNG (architectes associés)
Équipe
Barthes BE Bois
Maya concept
Grichka Martinetti (Atelier PNG)
Programme
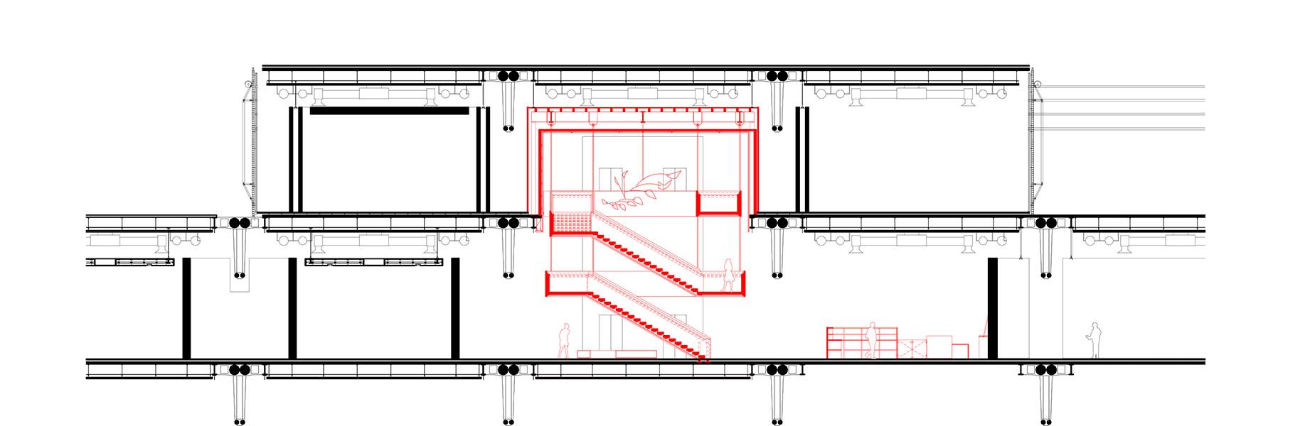
Refonte du parcours muséal, création d'un escalier monumental, d'un espace d'exposition et d'une librairie
Mission
Base + Diagnostic
Maitre d'ouvrage
Public – Centre Pompidou Paris
Montant des travaux
700 000 € HT
Surface
1220 m²
Rôle
Architecte mandataire
Statut
Livré







































