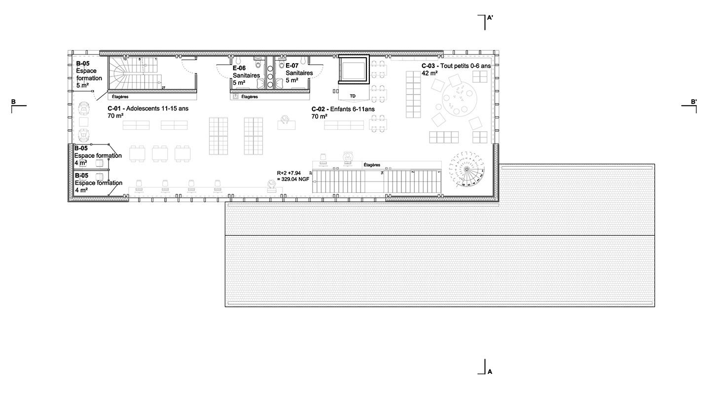
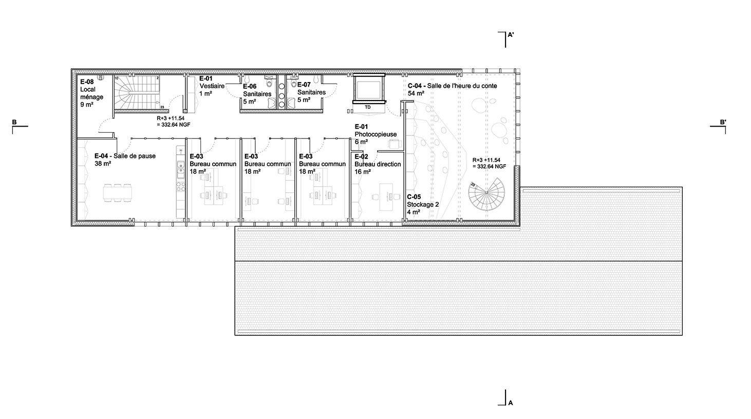
Plus qu’une médiathèque, véritable lieu offert aux habitants du quartier du haut du lièvre, le bâtiment se connecte avec la ville via un parvis de plain-pied avec les circulations piétonnes et les transports en commun. D’aspect simple et monolithique la médiathèque fait face à une des plus grandes barres d’Europe (le cèdre bleu, plus de 400m de long en R+13), construite par Bernard Zerfhus entre 1958 et 1968. Volume réalisé entièrement en bois, avec sa vêture de tavaillons qui se retourne en couverture. La charpente intérieure, empilement de bois massifs de petites sections, y compris dans la réalisation des planchers, accompagne le visiteur et crée une ambiance chaleureuse au cœur de ce quartier des années 60 en plein renouvellement.
Architectes
Xavier Géant (architecte mandataire)
Éléonore Nicolas (architecte associée)
Collaboratrice
Lucie Lemaire
Équipe
Barthes BE Bois
ATFE
Terranergie
Xavier Le Clerre
DB Silence
CS2N
Thomas et Bertrand
Programme
Médiathèque
Mission
Concours
Maitre d'ouvrage
Public - Ville de Nancy
Montant des travaux
2.1 M€ HT (hors VRD)
Surface
681 m²
Rôle
Architecte mandataire
Statut
Concours non lauréat

























