Situé au cœur des Vosges, l’Usine Duval est un des édifices majeurs qui constituent la série de l’Œuvre de Le Corbusier protégé par l’UNESCO.
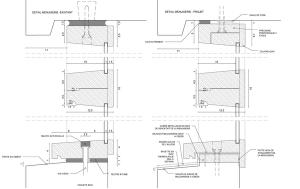
Le projet consiste à assurer la pérennité des ouvrages de menuiseries extérieures de la façade Sud-Est à long terme, ce qui n’est aujourd’hui plus garanti. Le projet propose donc des adaptations aux exigences actuelles tout en conservant la lecture identique des dispositions d’origine. Ce type de projet oblige à revoir la notion de l’élément où la conception d’une menuiserie est un projet en tant que tel à l’échelle 1 et hors des sentiers battus : assemblage, mise en œuvre, matériaux, quincaillerie, composition, proportion…
La restauration du patrimoine au service de filière locale et de savoir-faire locaux est au cœur du processus : Bois de chêne des Vosges et une entreprise locale vosgienne.



























