Maison de pierre et de bois qui explore la reconquête des techniques traditionnelles, le plaisir de l’artisan et l’écriture contemporaine.
Nous avons été à l’écoute des entreprises pour proposer des ouvrages qui leurs tiennent à cœur et valorisent leurs savoir-faire : arcs en pierre, assemblages de charpente , couverture à joint debout, fenêtres cintrées, sol et faïences en pierre locales, mobiliers expressifs.
Dans l’idée d’un ouvrage collectif qui valorise cette idée de « l’architecture à énergie humaine » que nous défendons.
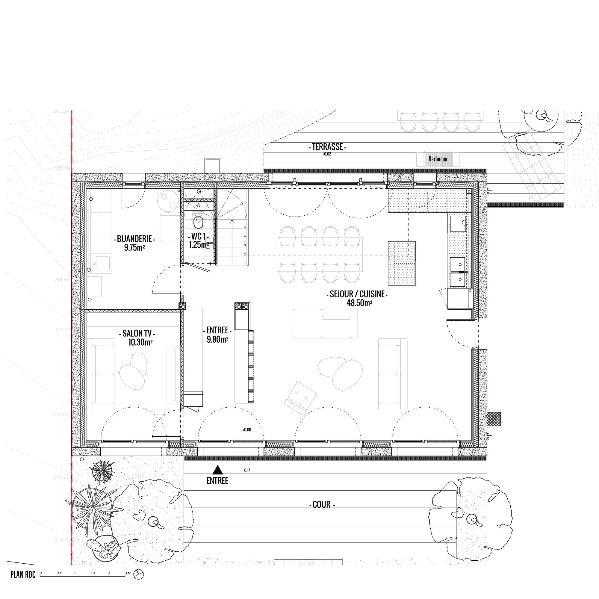
En contrepartie la volumétrie est compacte, le plan rationnel.
1 grand séjour/cuisine , 1 bureau, 1 buanderie , 4 chambres, 2 sdb, 2wc
Programme contenu dans 155m2 habitable, 400 000€HT, 2580€HT/m2
Budget qui nous semble raisonnable en 2024, en centre-ville, en RE2020.
A Nancy, nous avons quelques villas magnifiques de la période Art Nouveau, c’était il y a 120 ans.
Des projets qui nous fascinent pour leur créativité et leur finesse artisanale. Des projets qui nous rappellent la pauvreté constructive actuelle.Mais il faut bien avouer que de telles villas à l’époque (Majorelle, Bergeret) étaient très élitistes et atteignaient des budgets délirants. (Plusieurs millions d’Euros actuels sans doute)
On explore donc la possibilité de construire aujourd’hui avec de belles matières et mises en œuvre mais dans un budget « raisonnable ».
Quels compromis à trouver ? Quelles astuces pour faire bien et pas trop cher ? Comment stimuler et éveiller un « effort » de la part des artisans ? parce que, pour eux comme pour nous, la « part de plaisir » est importante.
Pour les clients aussi (merci pour votre implication dans ce récit partagé)
Scolytes et flexions
Petit focus sur ce garde-corps que l’on cherchait à réaliser depuis un moment.
Des planches d’épicéa suffisament fines (15mm) pour être fléchies.
Garde-corps en bas, et on écarte les lames en haut, pour voir au travers, comme dans les hautes herbes.
Le plaisir de la courbe, naturelle qui tend les fibres et augmente leur rigidité.
Notre ami Alexandre Hubert qui l’a construit avec d’autres amis.
Il a pris du bois, non séché, chez un ami scieur Baptiste Menjoz à Charmois-devant-Bruyères.
Mais quand les planches sont arrivées elles se sont avérées très chargées en traces de scolytes.
Petite cellule de crise….
On a hésité puis on s’est dit : allez, on assume.
Et c’est pour ça qu’on voit comme des traces d’encre, comme des estampes, sur les planches.
On ne regrette pas, c’est encore plus unique et ça fait encore une histoire à raconter.
Architecte : Christophe Aubertin
Collaborateurs : Caique Da Costa, Stéphanie Dunand, Florian Faucheur, Zoe Teulet, Nathan Illy
BET :Stono, Terranergie
Artisans : VRD GO CRBM / D’Elia Construction Pierre / Charpente couverture De Rambures et Paris / Laurent Fenêtres / SK54 plâtrerie isolation / Menuiserie Cagnin / marbrerie Lembo / Alexandre Hubert menuisier ébeniste / electricité ventilation ADelec / plomberie Vachon / chauffage MEV2C / métallerie Rodriguez.
Pierre de Migné (Poitiers) pour les murs car la pierre de Meuse était trop chère.
Pierre de Crepey (Nancy) pour les sols et faïences
Photographies : Olivier Mathiotte

































































































