La Maison Palyï (paille, en patois de Tignes)
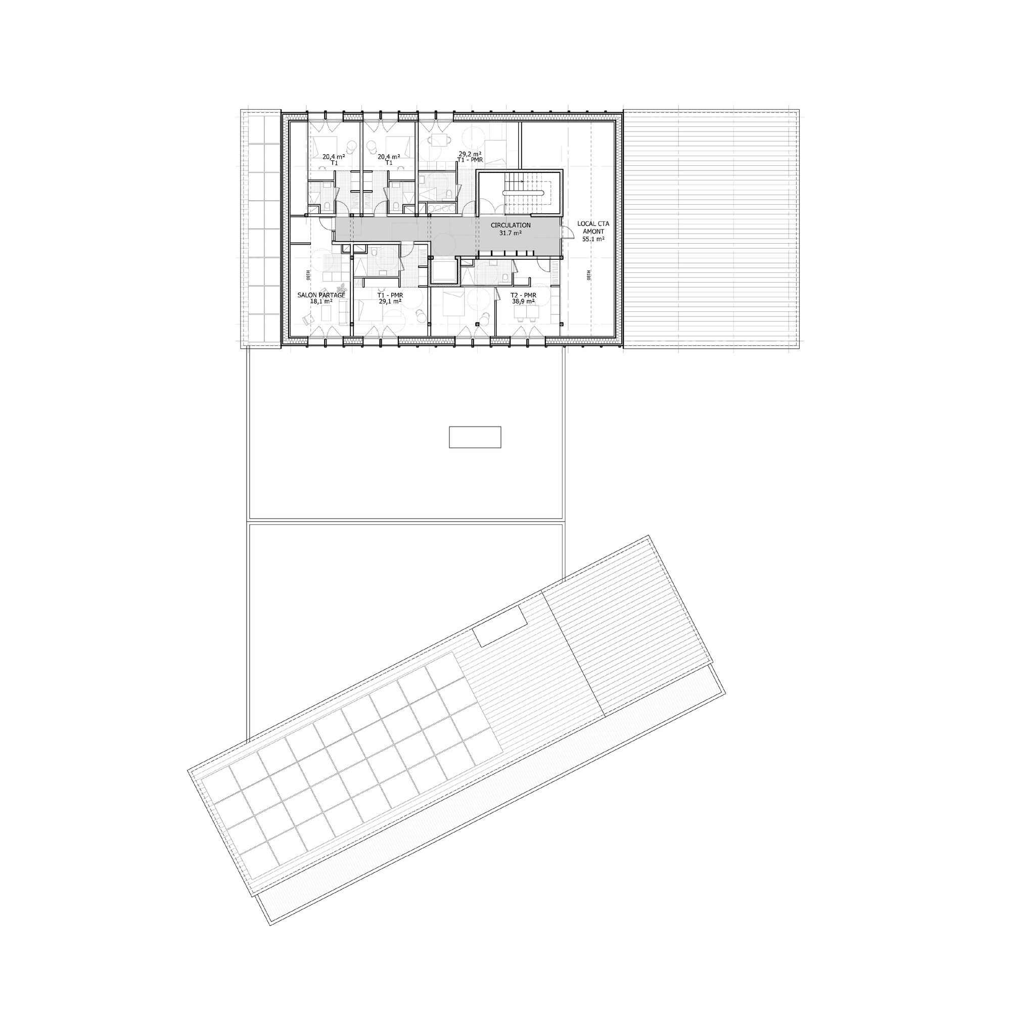
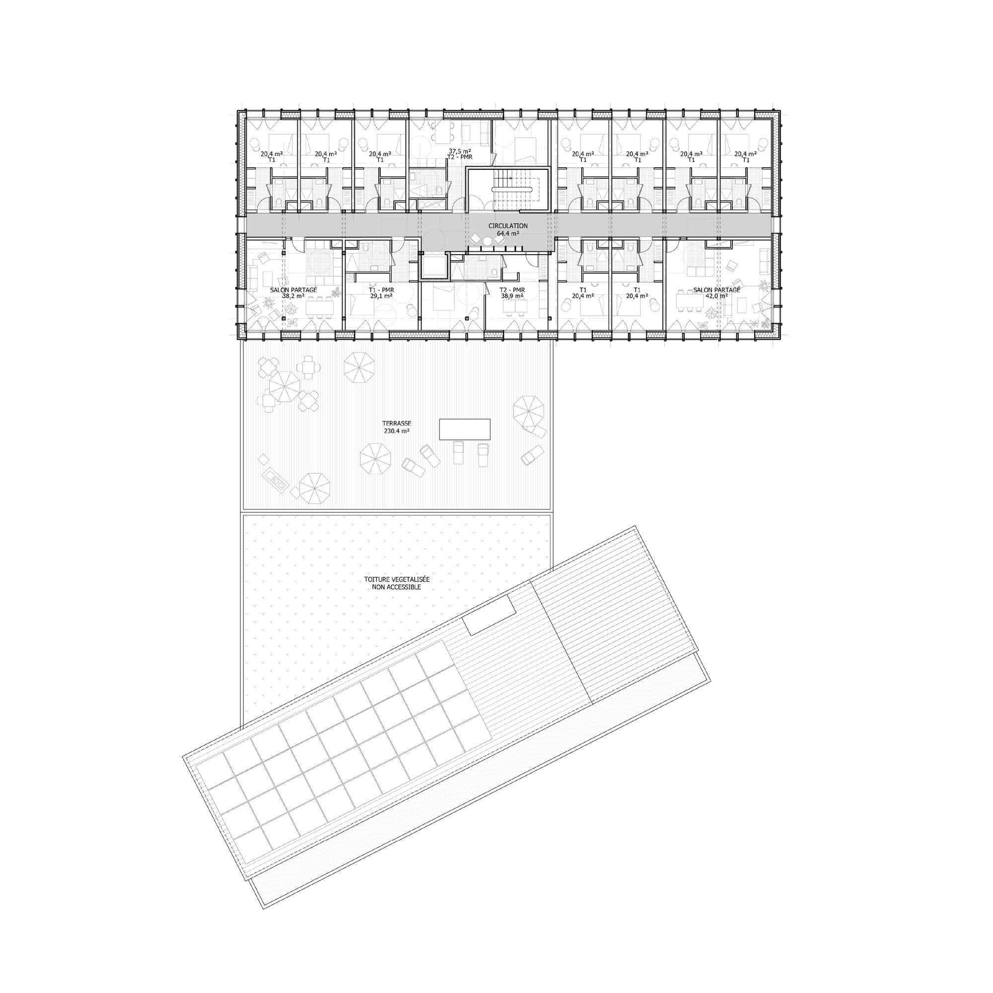
Le programme regroupe entre 60 et 70 logements, une crèche de 60 berceaux et des stationnements sur une parcelle à forte déclivité à l'entrée de Tignes le Lac, aujourd'hui occupée par un chalet dont les premières traces remontent aux années 1960.
Au delà des surfaces dédiées au programme, le projet de la Maison Palyï propose une réponse à la question : comment habiter la montagne demain, aux première loges des mutations économiques et climatiques rapides ?
Le projet s'appuie d'abord sur le déjà là, et prend le parti d'organiser la verticalité du site, les cheminements amonts > avals existants et futurs, en ré-écrivant sur le bâtiment existant purgé et conservé.
Le parvis accueille et se déploie sous la galerie en amont.
La traverse, rue intérieure, permet de distribuer les halls, la crèche, les parkings.
La placette le long du ruisseau, à l'aval, rassemble les flux venants du versant en face, de la traverse, et du sentier du jardin alpin qui renature la parcelle du projet.
Le projet, s'appuie ensuite sur l'innovation constructive et fonctionnelle, à 2000 m d'altitude :
- constructif : bâtiment en bois local et isolation paille en conservant l'existant et ses contraintes. Réécrire sur l’existant en montagne paraît essentiel pour limiter l'étalement des stations, tout en diminuant l'impact carbone des constructions nouvelles.
- volumétrique : scinder une opération d'envergure en deux bâtiments aux volumétries sages, pour suivre la pente, limiter les terrassements ravageurs, en implantant la crèche publique, en articulation des deux bâtiment
- énergétique : alimenter le bâtiment grâce à l'énergie solaire et son chauffage grâce à l'hydrothermie sur la nappe d'accompagnement du ruisseau du lac
- paysager : qualifier en renaturant le cœur du projet par un jardin alpin
- saisonnalité : adopter une architecture mesurée et contemporaine qui révèle ses systèmes constructifs et le territoire où elle s'établit, aux façades qui répondent au grand paysage à toute saison. Loin d'un joyau blanc international d'un chalet neo-régionaliste.
- social : repenser le logement saisonnier en proposant des formes de colocations intimistes, tout en permettant l'indépendance des habitants
- réversibilité : penser l'avenir de la montagne en travaillant un mode constructif qui permette la réversibilité des usages dans le bâtiment (re-cloisonnements, ouvertures, bureaux, ...) à moindre frais.
La Maison Palyï propose sa version, située, d'une construction qui saurait d'adapter au passé du site, à un besoin actuel, et à une station en mutations à venir.
Elle restera architecture de papier.
performance environnementale : Conformité RE2020, PassivHaus, construction paille, bois local





























