Ce que raconte ce projet :
- juxtaposition des usages et des volumes : entremêler les activités, les vues, les relations
- omniprésence du bois massif et des petites sections : la charpente envahit et qualifie un volume parfaitement simple.
- scénographie du franchissement : structure et géométrie
- confort acoustique, thermique et visuel : redéfinir le modèle du gymnase « utilitaire »
- introduire d’autres références techniques et poétiques issues du « vernaculaire agricole »
- une autre forme d’économie : de la matière locale et accessible / une main d’œuvre locale et qualifiée
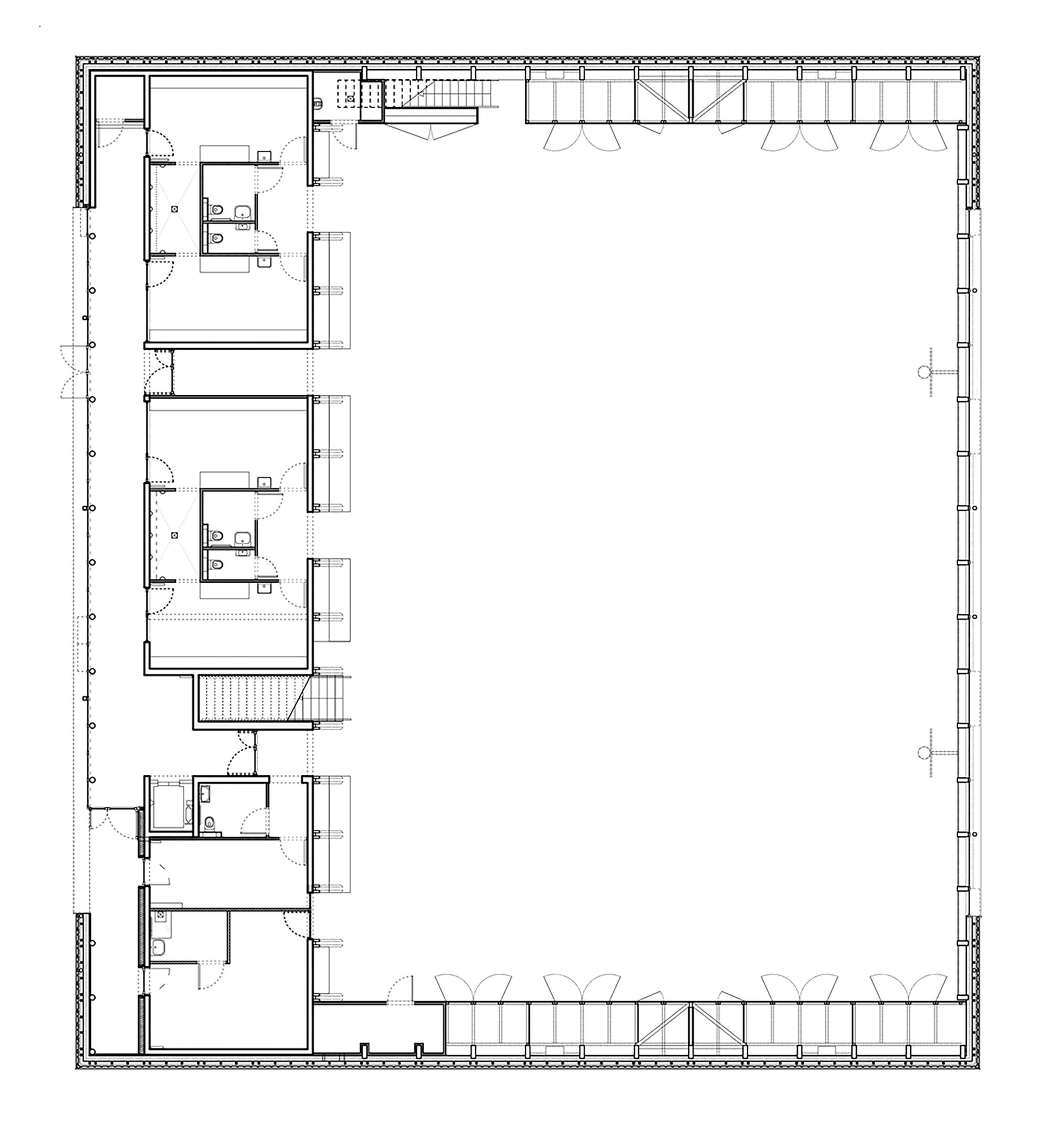
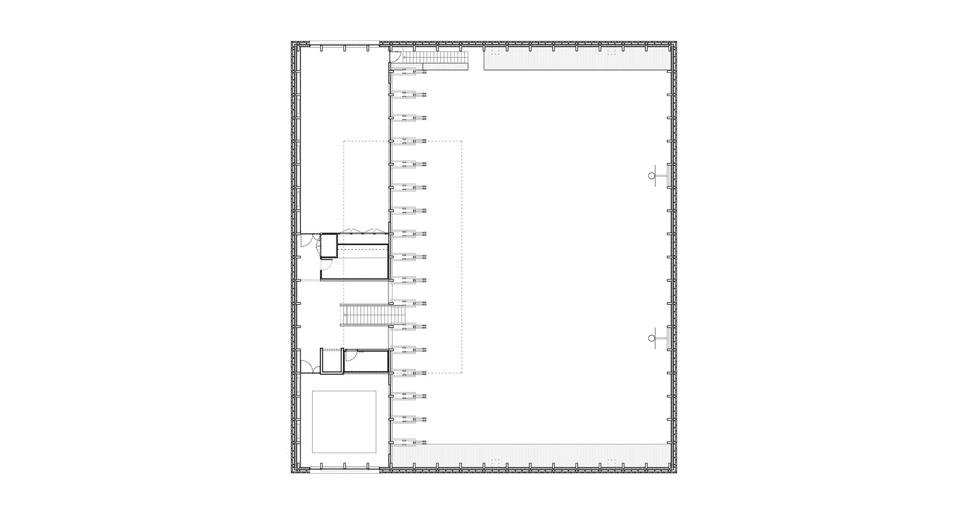
Le bâtiment prend place sur une petite parcelle pentée et exiguë, en contrebas du boulevard de Scarpone, en lieu et place de l’ancien gymnase sinistré en 2012. D’un côté le collège, de l’autre un bâtiment de bureaux, de l’autre une parcelle qui accueillera des logements et à l’arrière le site du Memô, lieu de fabrique artistique et foisonnante. Le gymnase est contenu dans un volume de 32mx36mx12m. La structure et les espaces sont organisés selon une trame de 2mx2mx2m. L’enveloppe extérieure est habillée de grandes planches de Douglas signifiant le motif en résille de la charpente intérieure. Chaque façade propose une seule et grande ouverture. Le plan est composé d’une bande de service latérale (vestiaires, sanitaires, bureaux) surplombée de deux petites salles de sport, en mezzanine et en lien visuel avec la grande salle principale. Un édicule en toiture offre deux grandes ouvertures en bandeau qui apportent lumière et ventilation naturelle au cœur du bâtiment.
L’édifice est construit en structure bois et repose sur un socle en béton calé dans la pente. Il démontre les capacités d’utilisation du bois local peu transformé en structure, en aménagement intérieur, en menuiserie extérieure et en bardage. Pour franchir 24m de portée avec uniquement du bois massif (de section 20cmx8cm et de longueur 8m), la charpente est composée de 17 portiques formant des poutres treillis moisées. La grille est assemblée à chaque nœud par des connecteurs métalliques traversant de part en part. Les fenêtres sont en pin lasuré de provenance locale. L’ensemble du mobilier : les gradins et les placards de la grande salle, les bancs des vestiaires sont réalisés en structure et planches de bois.
Les grands rangements sont disposés directement en pourtour du terrain pour accéder facilement aux différents modules de sport.
Charpente et bardage : Lebras Frères (54)
Fourniture épicea : scierie Mandray (88)
Menuiserie extérieure : Batifenêtres (55)
Fourniture pin : scierie du Grand Clos (55)
Menuiserie Intérieure : Baldini (54)
Fourniture pin et épicéa : scierie Bernard (88)
Autres entreprises : Colas, Lor espace vert ,Rock fondations, Adami, Iso plaquiste, Solemo, JBR, Lagarde et Meregnani, Avenna, Schindler, Nouansport
Photographies : Olivier Mathiotte





















































































