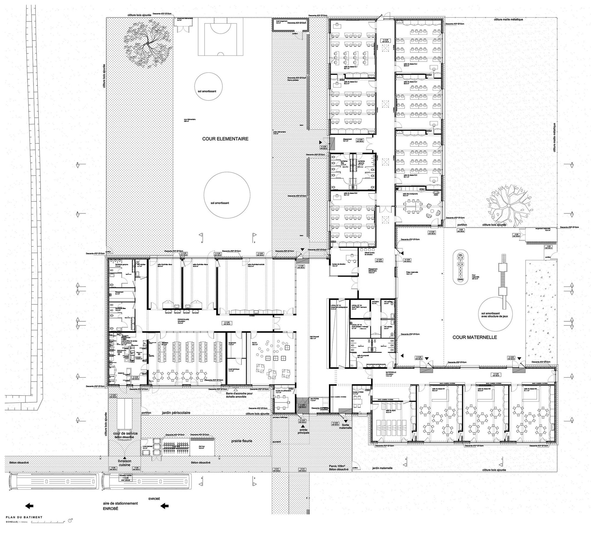
Le hall sort littéralement au-dessus du parvis, prenant par la main les enfants, les accompagnant dans un large volume distribuant les trois entités du projet. Hall lumineux et polyvalent, il est le lien entre école maternelle, école primaire, accueil périscolaire et cours. Cours au-dessus desquelles se développe un préau, véritable trait d’union entre les âges. La lumière entre dans le bâtiment de tous côtés mais sans jamais nuire à la bonne marche des activités scolaires et périscolaires. Parfois filtrée ou indirecte, la lumière construit les espaces et marque les différents temps de la journée.
Les différentes orientations des salles de classe permettent aux enfants de se situer dans l’espace et dans le temps, au fil des années de leur scolarité.
L’accès aux salles de classe de maternelle se fait via une large circulation ouvrant sur le jardin pédagogique, au nord. Tandis que l’accès aux salles de classe d’élémentaire se fait via une circulation cadrant, en fond de perspective, le centre de la commune et son clocher. Les grandes largeurs des circulations permettent l’aménagement de bancs, patères et zones d’affichage, ainsi qu’une grande fluidité des circulations. Les accès à la cour, des écoles maternelle et élémentaire sont différenciées.
Les salles d’activité se positionnent entre le hall et les cours. Bénéficiant d’une grande hauteur sous plafond, elles donnent toute la liberté nécessaire à l’organisation d’activités sportives, jeux et spectacles. Ces salles s’ouvrent sur les cours et la commune de Vahl Ebersing.
La circulation, devant le réfectoire et les salles d’activité est lumineuse et élargie, de sorte à créer un espace convivial permettant un accès calme et serein aux différentes activités périscolaires. Le réfectoire s’ouvre au sud, sur un jardin dédié. Il est en lien direct avec la cuisine, accessible en façade pour les livraisons.
Les cours s’ouvrent sur la commune de Vahl Ebersing et la plaine des sports. La clôture réalisée en bois, dans la continuité du bardage mis en place, s’adapte également aux usages et se transforme en locaux de stockage extérieurs, en bancs, ou encore en but de handball. Haute, elle filtre les vues et protège du vent.
Construction d’un groupe scolaire (9 salles de classe) et d’un accueil périscolaire (3 salles d’activités, une BCD, un réfectoire + cuisine) à Vahl Ebersing (57).











































