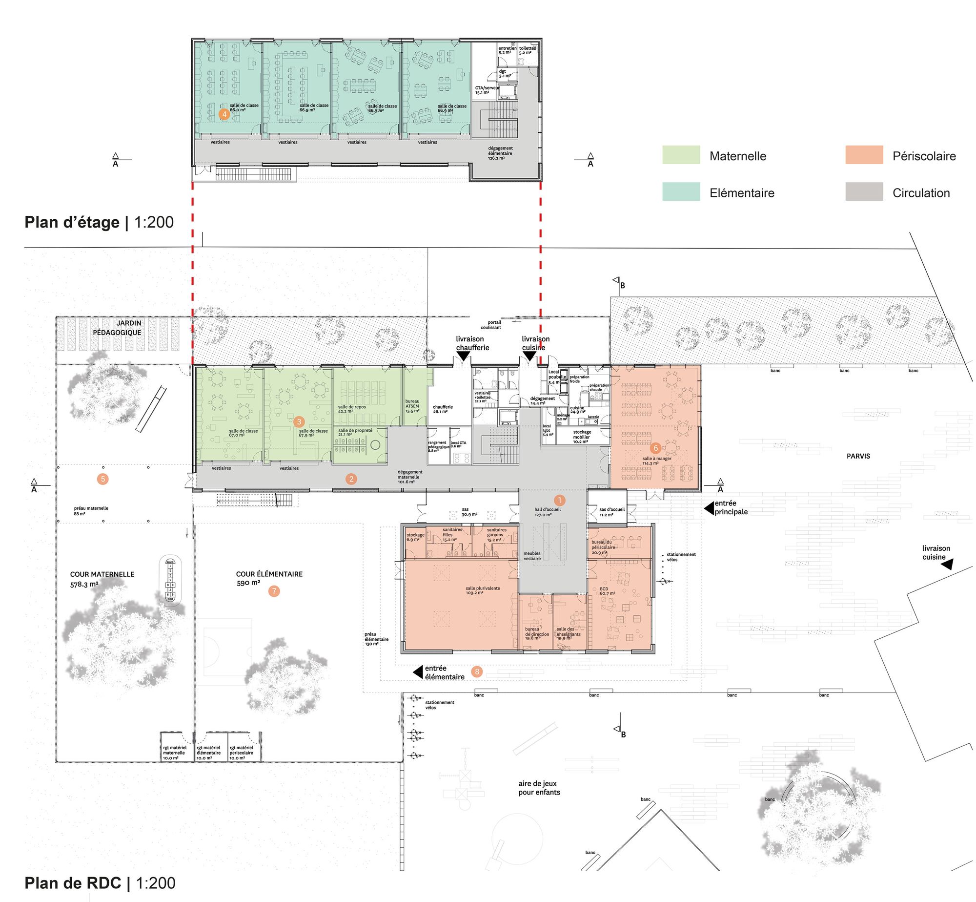
Organisé sur deux niveaux, le bâtiment s’ouvre sur son environnement proche et lointain en fonction des usages. Au rez-de chaussée, en lien direct avec le parvis, le city stade et la salle polyvalente, s’organise le périscolaire composé du réfectoire, de la bibliothèque et de la salle de motricité. Ces espaces créent un lien avec l’extérieur du groupe scolaire tout en préservant les salles de classe isolées au nord de la parcelle ; en rez-de-chaussée pour les maternelles et à l’étage pour les élémentaires.
Groupe scolaire
2018
Bouxières-Aux-Chênes (54)
Bouxières-Aux-Chênes (54)
2018
Architectes
Xavier Géant (architecte mandataire)
Éléonore Nicolas (architecte associée)
Collaborateur-rice-s
Louise André
Paul Corre
Équipe
Barthes BE Bois
SIGMA
ATFE
Euro Sound Project
Programme
Groupe scolaire
Mission
Concours
Maitre d'ouvrage
Public - Commune de Bouxières-Aux-Chênes
Montant des travaux
3 M€ HT
Surface
1420 m² + 3000 m² d'espaces extérieurs
Rôle
Architecte mandataire
Statut
Concours non lauréat





















