L’immeuble dit « Vaxelaire », situé au 53-57 rue Saint-Dizier est un immeuble remarquable, complexe, qui a connu différentes étapes de construction/modifications.
La première étape de construction date de 1886, portée par l’architecte Ingénieur Charles André. L’acquisition des immeubles contiguës rue Saint-Dizier et rue de la Faïencerie permettent rapidement un agrandissement de l’ensemble.
En 1913, Lucien Weissenberger, architecte, apporte des modifications importantes de la façade et de la couverture avec conservation d’une partie de la structure métallique ; une devanture en acajou est attribuée à Garnier, une marquise en fer forgé est réalisée par Majorelle et une verrière est réalisée par Jacques Gruber.
Un certain nombre de transformations successives (1936, 1939, 1948 et 1980) donne à
l'immeuble l'aspect d'une façade éventrée. Les travaux de 1948 transforment l'intérieur (structure
métallique encoffrée, ensemble des trémie bouchées, escaliers détruits...). La verrière semble avoir
été occultée vers 1980.
En 1993, une restructuration esteffectuée en vue d'accueillir le magasin Eurodif.
En 2019, l’immeuble doit faire l’objet de nouveaux travaux en vue de remettre en valeur les différents éléments remarquables. Nous sommes retenus pour requalifier l’immeuble « Vaxelaire ».
Un diagnostic historique, architectural et structurel est réalisé sur l’ensemble de l’immeuble.
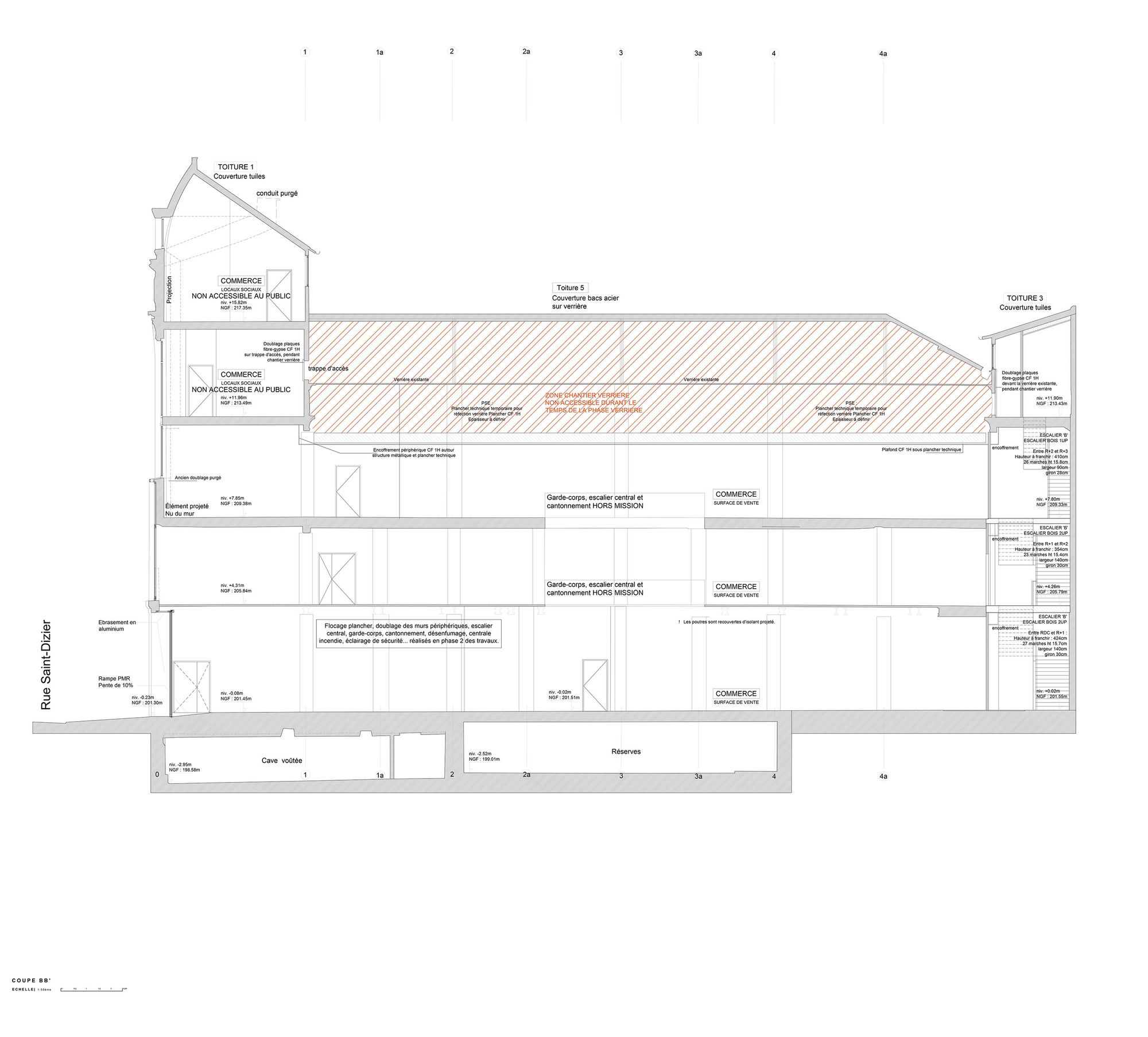
La partie commerce fait l’objet d’une restructuration lourde avec une purge de l’ensemble des éléments techniques, faux-plafond, escaliers, escalator et une mise à nu de la structure métallique en fonte.
Réouverture des trémies d’origine en vue de restituer une triple hauteur. Renforcement des structures afin d’assurer une capacité portante suffisante à l’ensemble.
La verrière Gruber est encapsulée de sorte à permettre une restructuration lourde ultérieurement.
Le clos couvert de l’immeuble fait l’objet d’une restructuration lourde.
L’ensemble des couvertures ardoises, tuiles et zinc sont refaites à neuf (hormis celle de la verrière) avec consolidation de la charpente.
Restauration et mise en valeur de la façade principale rue Saint-Dizier : hydrogommage et réparation des parties en pierre, suppression des allèges et impostes pleines nuisant à la lecture de l’ensemble, remplacement des menuiseries extérieures par des menuiseries en aluminium au RDC et R+1 et des menuiseries bois aux étages supérieurs, redonnant une cohérence d’ensemble à la façade et restitution de la façade du début du XXème.
Création des quatre logements rue Saint-Dizier et rue de la Faïencerie.
La signalétique extérieure, les aménagements intérieurs du commerce Hall du Livre ont été confiés à au maitre d’oeuvre Des Doigts, basé à Paris.















