Academos est une idée novatrice portée par le Conseil Départemental de la Mosellequi propose de reconvertir une ancienne cité scolaire de 1968 en un campus mixte de formation dans le domaine du sport, de la jeunesse et la sécurité civile. Le programme comprend aussi la création d’une caserne de pompier opérationnelle.
Nous avons construit ce projet autour de 3 axes de réflexion :
- l’insertion douce d’un campus dans le paysage et le voisinage alentour,
- une organisation claire et efficiente des compétences réunies sur le site
- faire de Academos un exemple de transition écologique d’un patrimoine ordinaire
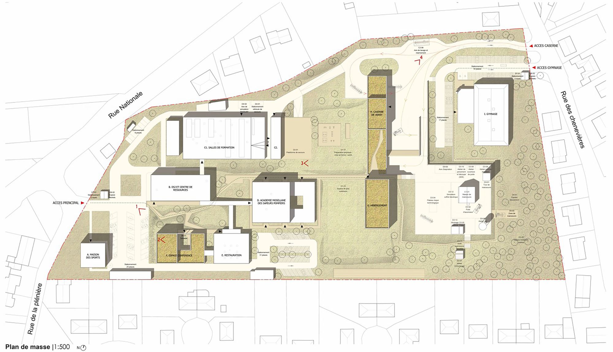
Le premier enjeu du projet consiste à faire coexister cet équipement avec un village et des habitants qui ont choisi Verny pour son calme et sa qualité de vie. Ainsi, le projet cherche à limiter l’impact des constructions neuves et des espaces de formation extérieurs vis-à-vis du voisinage. Les bâtiments neufs ne dépassent pas la hauteur des bâtiments existants et aucun linéaire de façade important n’est disposé face aux maisons alentours. L’orientation Est/Ouest des constructions, par ailleurs favorable du point de vue de l’ensoleillement, est ainsi privilégiée. Les vues au lointain sur la colline du fort de Verny et la vallée de la Seille sont accentuées. Les enveloppes en bois des bâtiments participent à cette insertion paysagère. La caserne de pompier est dissimulée partiellement dans la topographie. La végétation constitue un filtre visuel et sonore qui garantit la tranquillité des riverains mais aussi une certaine confidentialité aux pompiers et sportifs en exercice. Pour autant, lorsque le visiteur pénètre sur le site il découvre directement le bâtiment conférence qui symbolise le renouveau du site. Lorsqu’il déambule, il ne fait aucun doute qu’il s’agit bien d’un campus, institutionnel et novateur.
Sur cette vaste parcelle, le programme propose de créer des synergies, tout en permettant une autonomie de fonctionnement aux différents acteurs. Du point de vue de l’organisation spatiale il s’agit donc de trouver le juste équilibre entre distance et proximité, ouverture et fermeture, autonomie et partage. Le deuxième enjeu de l’opération consiste donc à doter la parcelle d’une organisation claire permettant une « cohabitation heureuse ». Ainsi le projet s‘appuie sur les lignes de force du site (accès, bâti en cour de réhabilitation, relief, végétation). A l’image des grands campus universitaires, des accès carrossables et des poches de stationnements sont disposés aux entrées. Un cheminement doux réservé aux piétons s’infiltre au cœur de la parcelle et relie l’ensemble des espaces extérieurs et bâtiments (y compris le gymnase) en respectant en tout point la règlementation Personnes à Mobilité Réduite, et ce malgré une topographie marquée.
Enfin, le troisième enjeu consiste à faire de Academos un exemple de transition écologiqued’un patrimoine ordinaire. La rénovation lourde en cours, qui valorise le bâti existant, constitue d’ores et déjà un premier signal fort. Le projet propose d’aller plus loin. Il valorise les espaces paysagers simples qui disposent d’un important potentiel, et d’une palette végétale endémique et variée (Frênes, Erables, bouleaux, pins…). Il transforme la « friche arbustive » située à l’est de la parcelle, en une « clairière » pour dissimuler les espaces de formation des pompiers dans un écrin de prunus, d’aubépines et d’églantiers, tout en maintenant son rôle primordial de refuge pour la faune locale (oiseau, insectes et autres petits rongeurs). Il conserve et valorise la plaine des sports située au coeur de la parcelle. Pour les bâtiments, le projet propose une conception bioclimatique et le recours à des matériaux biosourcés, le bois en particulier. Il privilégie ainsi la performance des enveloppes des bâtiments, des technologies de chauffage et de ventilations simples nécessitant peu d’entretien, ainsi qu’une bonne orientation des surfaces vitrées. L’utilisation du matériau bois pour les structures, isolants et bardages permet d’avoir recours à une ressource locale, renouvelable, et largement maitrisée par les entreprises du secteur. Le béton y sera associé pour les structures enterrées, et les parois fortement sollicitées (notamment dans la caserne). Dans l’auditorium, le projet propose une charpente singulière en bois empilés et des parois en briques de terre réalisées avec l’argile du site.
Ainsi les sportifs, pompiers, fonctionnaires, membres d’associations, trouveront dans le projet que nous proposons, un espace de partages et d’émulations. L’ambitieux mais réaliste Campus Academos fera rayonner à la manière d’un tiers lieu l’énergie de tout un territoire.





















