Cette maison se situe dans la vallée de la Straiture, marquée par la topographie et la végétation forestière. La volumétrie archétypale, simple à double pans de cette construction se tourne vers le paysage en aval. L’emprise générale de la construction de la maison est prévue de manière à intervenir sur une zone limitée pour ainsi préserver la majeure partie de la parcelle en tant qu’espace naturel.
Dans la continuité de cette pensée, cette « grange à habiter » est fondée sur des blocs en granit pour limiter l’impact sur le sol et lui donner un aspect flottant. Des escaliers extérieurs en bois permettent alors l’accès à celle-ci.
Cette architecture inscrite dans un contexte singulier appelle une construction située, avec des matériaux, des savoir-faire et des artisans de la région. Ce projet expérimente alors l’usage de ressources locales.
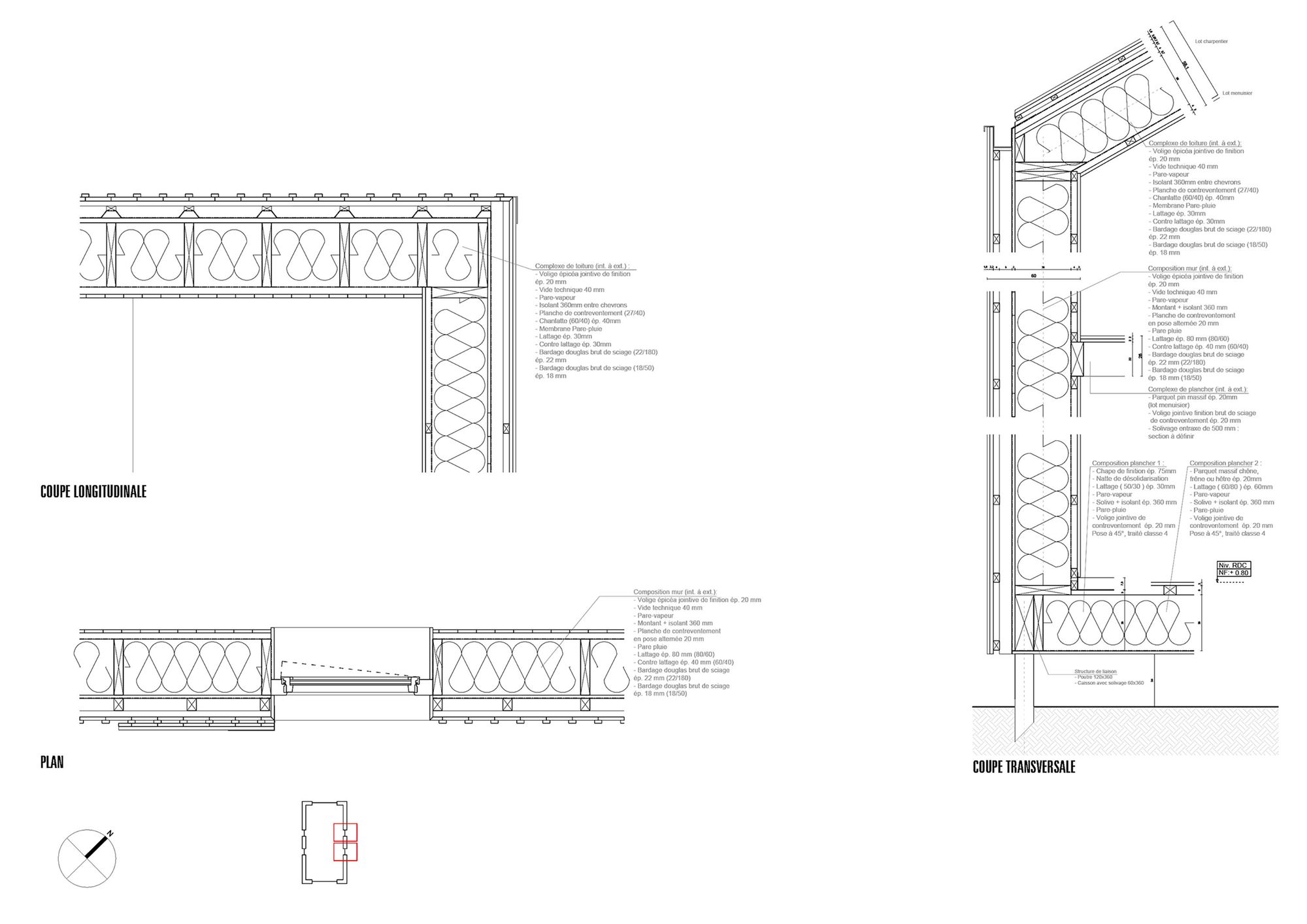
Les fondations en superstructure sont réalisées en blocs de granit de la Bresse. Le plancher bas, les murs ossatures bois et la charpente sont réalisés en épicéa des Vosges contreventés par des planches posées en diagonale. Dans le but d’isoler en paille, la structure est tramée en fonction de la dimension d’une botte de paille. Pour rafraichir en période estivale et conserver la chaleur émise l’hiver, le sol du rez-de-chaussée est réalisé en argile et apporte l’inertie idéale.
Dans le but de s’intégrer dans le paysage existant et en rappel aux anciennes fermes, les quatre façades sont traitées avec un bardage vertical en Douglas, flanqué de volets ajourés de motifs. La finition intérieure, le mobilier, la menuiserie extérieure ou encore les cloisons sont réalisés en planches de bois massifs pour garantir une provenance locale. Ces matériaux, sensibles, vivants, offre un univers sensoriel: des odeurs de tanin, des couleurs, des motifs variés et une robustesse chaleureuse.



































































